CHAMPEX - LAC
VALAIS SUISSE
EXTENSION D'UN CHALET EXISTANT, DEBUT DU CHANTIER PREVU POUR MI SEPTEMBRE ( FONDATION )
DEBUT DE LA CONSTRUCTION : 3 OCTOBRE 2018 - FIN : 20.10.2018
PHOTOS DE LA SITUATION PRECEDENTE EN SEPTEMBRE 2018




3 OCTOBRE 2018
Arrivée du camion et de l'équipe de montage, 4 hommes...








Pose des murs sur la dale de béton.


Prolongation de la toiture existante



Murs avant pose des isolations et lambrissage




Situation du chantier après 10 jours ! le 12 octobre 2018
















Fin des travaux et remise des clés, effectuée le 19 octobre 2018 à la plus grande satisfaction des propriétaires !
Photos de la construction totalement terminée.

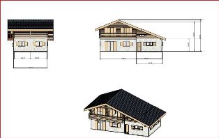
MODIFICATIONS ET ASPECT FUTUR ( CLIQUEZ SUR LES IMAGES POUR DOSSIERS PDF DETAILLES ) :
VIDEOS DE PRESENTATION ( CLIQUEZ SUR LES IMAGES POUR VIDEOS DETAILLEES, format LECTEUR WINDOW MEDIA ) :