Construction de deux chalets en fustes, modèles Blanche-Neige et Mazot
( déroulez la page, pour voir le suivi de la construction, merci )
Cette propriété avec les deux constructions est en vente depuis peu, pour toute information merci de contacter info@srdc.ch
Commune de Dorénaz - Valais - Suisse

Montage prévu sur le terrain : août 2015


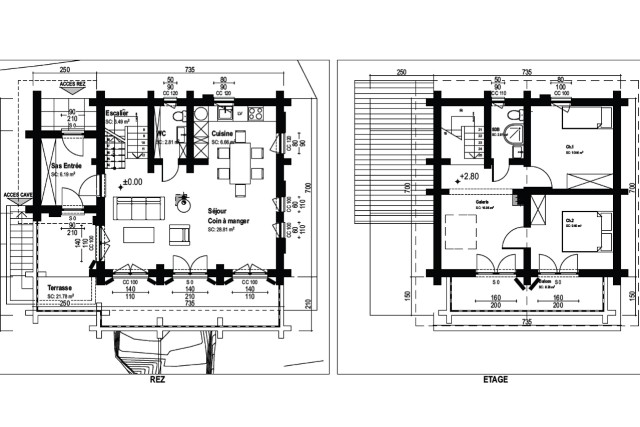
LE BLANCHE NEIGE








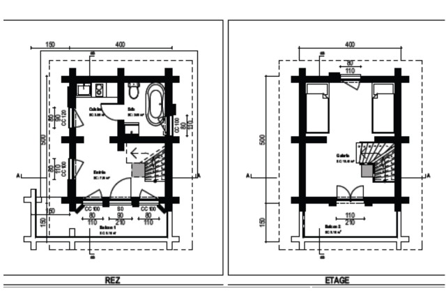
LE MAZOT




DEBUT DE CONSTRUCTION A L'USINE DU BLANCHE NEIGE MARS 2015
*************************************************
Réception à l'usine par les clients 19-20 juin 2015 les chalets seront expédiés démontés en Suisse début août.
Le Blanche Neige à droite et le Mazot à gauche
************************************





21.4.15




SITUATION EN JUILLET-AOUT 2015
Pose d'une grue sur le site et arrivée du premier camion avec les éléments du Mazot


Le semi remorque de 40 tonnes ne peut monter sur le chantier à cause des lacets prononcés, tout doit être transféré sur un camion remorque 3 essieux

Costauds les équipes roumaines de S.R.D.C. !





Une vue magnifique depuis ces chalets

situation au 1.9.15
.jpg)
Terminaison des fondations en béton du Blanche Neige
.jpg)

Les camions avec les fustes et menuiserie des chalets Blanche Neige et Mazot arrivent !
Situation le 15.9.15
.jpg)
.jpg)
.jpg)
.jpg)
.jpg)
.jpg)




situation le 24.9.15


Un toit de bardeaux, rien de plus beau, écologique et durable.


Détails d'un toit en bardeaux de cèdres.


Pose de plaques Fermacell anti incendie sous les bardeaux.


Le 6 octobre le travail de S.R.D.C. sera terminé, restera pour les propriétaires les installations de chauffage et finitions.
7 octobre 2015
Les chalets sont terminés pour ce qui concerne le travail de S.R.D.C.
.jpg)
.jpg)
.jpg)
.jpg)
.jpg)
.jpg)
les deux chalets construits à l'usine avant exportation
assemblage du Mazot en Valais
fondation du Blanche-Neige
Un décor superbe avec vue sur les Aiguilles du Midi ( Mont Blanc )